
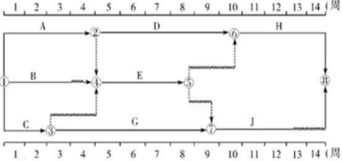
1.兼有网络计划与横道方案的特点,能够清晰地说明规划的时间进程,能在图中直接表明各项工作开始与结束时间、工作总时差及关键路径,时标网络计划在制作中遭受时间坐标限制,不易造成回路什么的逻辑错误,可以利用的时候网络计划图立即统计资源需求量,以便开展资源优化和优化。
2.现在我国广泛使用的横道图,主要的优势就是看着简单实用,通俗易懂,双代号网络图也拥有的优势,能重点看每一项工作时间过程,同时具有网络结构图可以算时间参数来进行进度管理的功效。
3.开始与结束时间可以在网络结构图直接看对应的点就可以了,总时差看浪线,关键路径找没波型线的线路。
4.箭线的长短和延续时间相对应,持续时间越长箭线就越久,持续时间越少箭线就越少。节点是那个点它的中心点就要指向那个点。